情報更新日:2026年04月03日/広告有効期限:なし
表示閲覧回数(過去30日間):0
お急ぎの方はお電話からお気軽にどうぞ!
087-814-4030 営業時間 / 9:30〜17:30 定休日 / 水曜、日曜、祝日
>物件詳細情報
| 基本情報 | |
|---|---|
| 物件番号 | 4487 |
| 店舗形態 | 事務所, , 店舗 |
| オススメ業種 | 医療関係 |
| 物件名 | 西高松第2メディカルビル |
| 物件の状態 | 空き |
| 引越し時期 | 即 |
| 契約形態と期間 |
普通契約期間:3年間 |
| 所在地・交通 | |
|---|---|
| 所在地 | 香川県高松市郷東町-148-3 |
| 交 通1 | JR予讃線香西駅 徒歩14 |
| 交 通2 | - |
| 賃料 | |
|---|---|
| 賃 料 | 賃料未定 |
| 敷 金 |
10ヶ月 |
| 共益費・管理費 | 55,000円(税込) |
| 精算方法 | 実費 |
| その他 | |
|---|---|
| 備考 | ■ゴミ回収は各自業者手配■鍵交換費用別途■看板、サイン工事は借主負担■仲介手数料:賃料1か月分■賃貸保証等:加入要(賃料保証会社に加入の事。初年度賃料の100%、2年目以降滞納無しの場合10,000円/年)■解約予告:6カ月前■防火対象物使用開始届出書については借主にて提出■建物用途変更手続きについては借主負担■転貸借契約物件 |
| 建物 | |
|---|---|
| 建物構造 | 鉄筋コンクリート造 |
| 建物階建て |
地上4階 |
| 施工年月 | 2007(平成19)年 01月 |
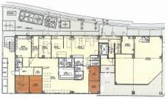
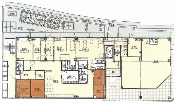
| 募集物件の階数 | 地上 1階 1F東号室号室 |
| 契約面積 | 226m2(68.37坪) |
| 用途地域 | 準工業 |
| 設備 | |
|---|---|
| 水道 | 公営 |
| ガス | LPG |
| エレベータ | 有 |
| エアコン | 有り/個別 |
| トイレ | 有/専用 |
| 給湯室 | 有/専用 |
| キッチン | 有/専用 |
| ネット環境 | 無 |
| 床仕様 | CFシート |
| セキュリティ | 無 |
| 利用時間 | 時間制限有 |
| シャッター | 無 |
| 照明設備 | 有 |
| 内装業者指定 | 有 |
| 駐車場 | |
|---|---|
| 状 況 | 空有 |
| 駐車料金 | 4,000円(税込) |
| 取引情報 | |
|---|---|
| 取引態様 | 媒介 |
| 客付 | 可 |
この物件をチェックした人はこんな物件も見ています
- 浜街道沿いの事務所物件です。敷地内に1台5000円で駐車可能です。

香川県高松市茜町19--12
691.36m2(209.14坪)
777,128円(税込)
- 三木町池戸の大宮保育園近くに121坪の土地です。資材置場として使用する事も可能。敷地内に10台以上駐車可能です。

香川県木田郡三木町大字池戸-2135-1
402m2(121.61坪)
55,000円(税込)
- 市内中心部のRC造1.2Fの1棟貸物件です。店舗として使用することも可能。敷地内に縦列で軽程度2台駐車可能です。

香川県高松市古新町-7-11
129.78m2(39.26坪)
165,000円(税込)
- 高松西インターまで1.8キロの1棟貸103.75坪の事務所物件です。敷地内に駐車場13区画分あります。JR鬼無駅まで徒歩35分。

香川県高松市檀紙町-851-6
343m2(103.76坪)
330,000円(税込)
- 国道32号線沿い74坪の西山崎町の倉庫付き事務所です物流拠点として使用する事も可能。敷地内に3台以上駐車可能です。天井高を活かしたスタジオ利用も可!搬入出をスムーズに。電動シャッター&吹抜倉庫付き、攻める物流拠点。

香川県高松市西山崎町-892-1
246.59m2(74.59坪)
225,000円(税込)
今日チェックした物件
お急ぎの方はお電話からお気軽にどうぞ!
087-814-4030 営業時間 / 9:30〜17:30 定休日 / 水曜、日曜、祝日


087-814-4030



















087-814-4030