情報更新日:2026年04月03日/広告有効期限:なし
表示閲覧回数(過去30日間):23
お急ぎの方はお電話からお気軽にどうぞ!
087-814-4030 営業時間 / 9:30〜17:30 定休日 / 水曜、日曜、祝日
>物件詳細情報
| 基本情報 | |
|---|---|
| 物件番号 | 1993 |
| 店舗形態 | 事務所 |
| オススメ業種 | 事務所 |
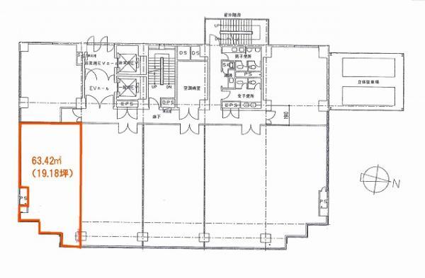
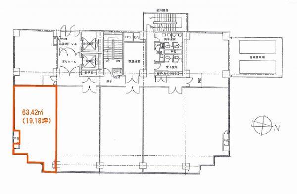
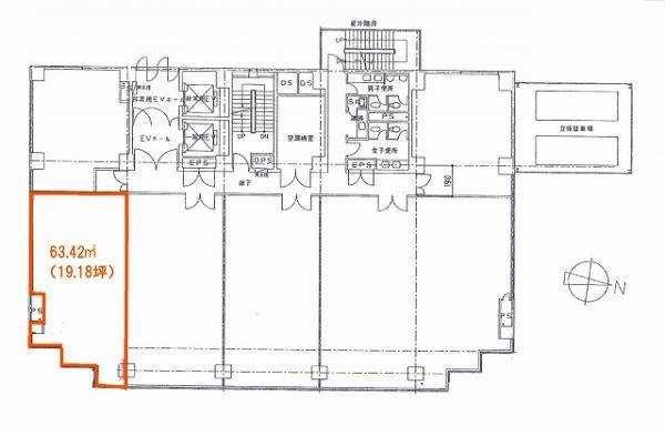
| 物件名 | 日本生命高松駅前ビル5F(19.18坪)【寿町1丁目】テナント |
| 物件の状態 | 空き |
| 引越し時期 | 即 |
| 契約形態と期間 |
普通契約期間:2年間 |
| 所在地・交通 | |
|---|---|
| 所在地 | 香川県高松市寿町1-1-8 |
| 交 通1 | ことでん琴平線高松築港駅 徒歩1 |
| 交 通2 | - |
| 賃料 | |
|---|---|
| 賃 料 | 賃料未定 |
| 敷 金 |
12ヶ月 |
| その他 | |
|---|---|
| 備考 | ■ゴミの回収は各自で業者手配■鍵交換費用別途必要■看板、サイン工事は借主実費負担■仲介手数料:賃料1ヶ月分(税別) |
| 建物 | |
|---|---|
| 建物構造 | 鉄骨鉄筋コンクリート造 |
| 建物階建て |
地上12階 |
| 施工年月 | 1987(昭和62)年 |
| 募集物件の階数 | 地上 5階 5号室 |
| 契約面積 | 63.42m2(19.18坪) |
| 用途地域 | |
| 設備 | |
|---|---|
| 水道 | 公営 |
| 下水道 | 公共下水 |
| エレベータ | 有 |
| エアコン | 有り/個別 |
| 照明設備 | 有 |
| 内装業者指定 | 無 |
| 駐車場 | |
|---|---|
| 状 況 | 空有 |
| 駐車料金 | 25,000円(税込) |
| 取引情報 | |
|---|---|
| 取引態様 | 媒介 |
| 客付 | 可 |
この物件をチェックした人はこんな物件も見ています
- 福岡町にある約14坪の倉庫物件です

香川県高松市福岡町2-14-1
46.69m2(14.12坪)
44,000円(税込)
- 【香川県高松市香西本町の貸倉庫】 ◆さぬき浜街道の北側エリア◆ 駐車場1台込

香川県高松市香西本町-751―9
85.41m2(25.84坪)
49,500円(税込)
- ◆県道33号高松丸亀線沿い◆高松市内を東西に結ぶ33号線沿いのオフィスビルです!エレベーター・警備保障も付いています♪

香川県高松市中央町3-13
46.32m2(14.01坪)
81,481円(税込)
- 田村ビル1F【栗林町】テナント

香川県高松市栗林町1-3-16
84.92m2(25.69坪)
152,776円(税込)
- 中村第一ビル6F西号【塩上町】国道11号線沿いの鏡面仕上げの外観が特徴の7階建て4階部分34.3坪のオフィスビルです。駐車場は近隣相場税込16,500円です。ことでん今橋駅まで徒歩3分。

香川県高松市塩上町3-2-4
58.96m2(17.84坪)
99,000円(税込)
今日チェックした物件
お急ぎの方はお電話からお気軽にどうぞ!
087-814-4030 営業時間 / 9:30〜17:30 定休日 / 水曜、日曜、祝日


087-814-4030













087-814-4030