情報更新日:2026年04月03日/広告有効期限:なし
表示閲覧回数(過去30日間):23
お急ぎの方はお電話からお気軽にどうぞ!
087-814-4030 営業時間 / 9:30〜17:30 定休日 / 水曜、日曜、祝日
>物件詳細情報
| 基本情報 | |
|---|---|
| 物件番号 | 4465 |
| 店舗形態 | 事務所 |
| オススメ業種 | 事務所 |
| 物件名 | 三甲高松ビル603,604,605号【中新町】中央通りテナント |
| 物件の状態 | 空き |
| 引越し時期 | 即 |
| 契約形態と期間 |
普通契約期間:2年間 |
| 所在地・交通 | |
|---|---|
| 所在地 | 香川県高松市中新町-11番地1 |
| 交 通1 | ことでん琴平線瓦町駅 徒歩9 |
| 交 通2 | - |
| 賃料 | |
|---|---|
| 賃 料 | 賃料未定 |
| 敷 金 |
12ヶ月 |
| 精算方法 | 実費 |
| その他 | |
|---|---|
| 備考 | ■仲介手数料:賃料1か月分 ■賃貸保証等:加入要(賃料保証会社に加入の事。初年度賃料の100%、2年目以降滞納無しの場合10,000円/年) ■解約予告:6カ月前 ■機械式駐車場32台 ■袖看板使用の場合 別途費用発生 ■賠償保険特約付店舗総合保険:加入要 |
| 建物 | |
|---|---|
| 建物構造 | 鉄骨鉄筋コンクリート造 |
| 建物階建て |
地上8階 |
| 施工年月 | 1990(平成2)年 02月 |
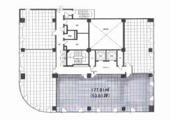
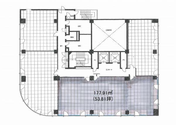
| 募集物件の階数 | 地上 6階 603,604号室 |
| 契約面積 | 177.91m2(53.82坪) |
| 用途地域 | |
| 設備 | |
|---|---|
| 水道 | 公営 |
| 下水道 | 公共下水 |
| エレベータ | 有/2基 |
| エアコン | 有り/個別 |
| トイレ | 有/共用 |
| 給湯室 | 有/共用 |
| キッチン | 有/共用 |
| 床仕様 | タイルカーペット |
| セキュリティ | 機械警備 |
| 利用時間 | 24時間 |
| シャッター | 有/自動 |
| 照明設備 | 有 |
| 内装業者指定 | 有 |
| 駐車場 | |
|---|---|
| 状 況 | 空有 |
| 駐車料金 | 22,000円(税込) |
| 空き台数 | 31台 |
| 取引情報 | |
|---|---|
| 取引態様 | 媒介 |
| 客付 | 可 |
この物件をチェックした人はこんな物件も見ています
- 市内を東西に結ぶ県道33号線沿いのオフィス物件です。室内の大きさは色々なタイプがあります。敷地内に駐車スペースをご用意しております(1台12,000円+税)ので、駐車場付オフィスをお考えのテナント様、是非ご覧下さいませ。

香川県高松市宮脇町1-1-23
64m2(19.36坪)
93,500円(税込)
- 【高松市番町の貸オフィス】◆中央通り沿い◆ 高松市内中心部の「中央通り」沿いの物件です♪東面窓からは高松城、屋島が望めて、室内はもちろん共用部もキレイな物件です。JR高松駅も徒歩2分の便利な場所です!

香川県高松市寿町1-1-8
63.42m2(19.18坪)
賃料未定
- ◆美術館通り沿い◆

香川県高松市番町1--3-1
105.79m2(32.00坪)
176,000円(税込)
- ◆県道33号高松丸亀線沿い◆高松市内を東西に結ぶ33号線沿いのオフィスビルです!エレベーター・警備保障も付いています♪

香川県高松市中央町3-13
46.32m2(14.01坪)
81,481円(税込)
- ことでん瓦町駅まで徒歩6分。 中央通り沿いのガラス張りの外壁が特徴の10階建て2F部分69.73坪のオフィス物件です。近隣駐車場の相場は25,000円~です。

香川県高松市亀井町8-11
230.52m2(69.73坪)
賃料未定
今日チェックした物件
お急ぎの方はお電話からお気軽にどうぞ!
087-814-4030 営業時間 / 9:30〜17:30 定休日 / 水曜、日曜、祝日


087-814-4030



















087-814-4030