情報更新日:2025年11月14日/広告有効期限:なし
表示閲覧回数(過去30日間):6
お急ぎの方はお電話からお気軽にどうぞ!
087-814-4030 営業時間 / 9:30〜17:30 定休日 / 水曜、日曜、祝日
>物件詳細情報
| 基本情報 | |
|---|---|
| 物件番号 | 4462 |
| 店舗形態 | 事務所 |
| オススメ業種 | 事務所 |
| 物件名 | 三甲高松ビル305,306号【中新町】中央通りテナント |
| 物件の状態 | 空き |
| 引越し時期 | 即 |
| 契約形態と期間 |
普通 |
| 所在地・交通 | |
|---|---|
| 所在地 | 香川県高松市中新町-11番地1 |
| 交 通1 | ことでん琴平線瓦町駅 徒歩9 |
| 交 通2 | - |
| 賃料 | |
|---|---|
| 賃 料 | 賃料未定 |
| 敷 金 |
12ヶ月 |
| 精算方法 | 実費 |
| その他 | |
|---|---|
| 備考 | ■仲介手数料:賃料1か月分 ■賃貸保証等:加入要(賃料保証会社に加入の事。初年度賃料の100%、2年目以降滞納無しの場合10,000円/年) ■解約予告:6カ月前 ■機械式駐車場32台 ■袖看板使用の場合 別途費用発生 ■賠償保険特約付店舗総合保険:加入要 |
| 建物 | |
|---|---|
| 建物構造 | 鉄骨鉄筋コンクリート造 |
| 建物階建て |
地上8階 |
| 施工年月 | 1990(平成2)年 02月 |
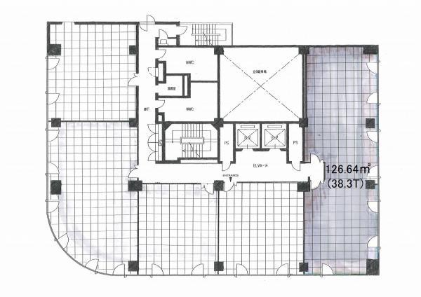
| 募集物件の階数 | 地上 3階 305,306号室 |
| 契約面積 | 126.64m2(38.31坪) |
| 用途地域 | |
| 設備 | |
|---|---|
| 水道 | 公営 |
| 下水道 | 公共下水 |
| エレベータ | 有/2基 |
| エアコン | 有り/個別 |
| トイレ | 有/共用 |
| 給湯室 | 有/共用 |
| キッチン | 有/共用 |
| 床仕様 | タイルカーペット |
| セキュリティ | 機械警備 |
| 利用時間 | 24時間 |
| シャッター | 有/自動 |
| 照明設備 | 有 |
| 内装業者指定 | 有 |
| 駐車場 | |
|---|---|
| 状 況 | 空有 |
| 駐車料金 | 22,000円(税込) |
| 空き台数 | 32台 |
| 取引情報 | |
|---|---|
| 取引態様 | 媒介 |
| 客付 | 可 |
この物件をチェックした人はこんな物件も見ています
- 【高松市番町の貸オフィス】◆中央通り沿い◆ 高松市内中心部の「中央通り」沿いの物件です♪東面窓からは高松城、屋島が望めて、室内はもちろん共用部もキレイな物件です。JR高松駅も徒歩2分の便利な場所です!

香川県高松市寿町1-1-8
63.42m2(19.18坪)
賃料未定
- ◆美術館通り沿い◆

香川県高松市番町1--3-1
105.79m2(32.00坪)
176,000円(税込)
- 坂出市事業用借地(西庄町966番5・966番3)

香川県坂出市西庄町
266.62m2(80.65坪)
55,000円(税込)
- 【香川県高松市鍛冶屋町の貸オフィス】 ◆中央通りエリア◆高松市内のオフィス街である中央通りと美術館通りのおしゃれなエリアに挟まれた、紺屋町のオフィス物件です。建物北側に丸亀町北駐車場があり、月極め駐車場として使用可能です(空き要確認)

香川県高松市紺屋町-1―3
124.42m2(37.64坪)
賃料未定
- ◆県道33号高松丸亀線沿い◆高松市内を東西に結ぶ33号線沿いのオフィスビルです!エレベーター・警備保障も付いています♪

香川県高松市中央町3-13
46.32m2(14.01坪)
81,481円(税込)
今日チェックした物件
お急ぎの方はお電話からお気軽にどうぞ!
087-814-4030 営業時間 / 9:30〜17:30 定休日 / 水曜、日曜、祝日


087-814-4030



















087-814-4030