情報更新日:2025年08月01日/広告有効期限:なし
表示閲覧回数(過去30日間):22
お急ぎの方はお電話からお気軽にどうぞ!
087-814-4030 営業時間 / 9:30〜17:30 定休日 / 水曜、日曜、祝日
>物件詳細情報
| 基本情報 | |
|---|---|
| 物件番号 | 4212 | 
| 店舗形態 | 事務所 | 
| オススメ業種 | 塾・学校・教育関係, 事務所 | 
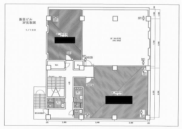
| 物件名 | 新栄倉庫ビル301号室【香西東町】テナント | 
| 物件の状態 | 空き | 
| 引越し時期 | 即 | 
| 契約形態と期間 | 
        普通契約期間:2年間 | 
    
| 所在地・交通 | |
|---|---|
| 所在地 | 香川県高松市香西東町-304―1 | 
| 交 通1 | JR予讃線香西駅 徒歩8 | 
| 交 通2 | - | 
| 賃料 | |
|---|---|
| 賃 料 | 106,689円(税込) | 
| 敷 金 | 
      3ヶ月 | 
| 精算方法 | 実費 | 
| その他 | |
|---|---|
| 備考 | ■ゴミ回収は各自業者手配■鍵交換費用別途必要■仲介手数料:賃料1ヵ月分■賃貸保証等:加入要(賃料保証会社に加入の事。初年度賃料の100%、2年目以降滞納無の場合10,000円/年)■解約予告:3カ月前■防火対象物使用開始届出書については借主にて提出■建物用途変更手続きについては借主負担 | 
| 建物 | |
|---|---|
| 建物構造 | 鉄筋コンクリート造 | 
| 建物階建て | 
      地上4階 | 
| 施工年月 | 1974(昭和49)年 05月 | 
| 募集物件の階数 | 地上 3階 301号室 | 
| 契約面積 | 106.89m2(32.33坪) | 
| 用途地域 | 準工業 | 
| 設備 | |
|---|---|
| 水道 | 公営 | 
| 下水道 | 公共下水 | 
| エレベータ | 無 | 
| エアコン | 有り/個別 | 
| トイレ | 有/共用 | 
| 給湯室 | 有/共用 | 
| キッチン | 有/共用 | 
| ネット環境 | 無 | 
| 床仕様 | タイルカーペット | 
| セキュリティ | 機械警備 | 
| 利用時間 | 24時間 | 
| シャッター | 無 | 
| 照明設備 | 有 | 
| 内装業者指定 | 有 | 
| 駐車場 | |
|---|---|
| 状 況 | 空有 | 
| 駐車料金 | 4,400円(税込) | 
| 取引情報 | |
|---|---|
| 取引態様 | 媒介 | 
| 客付 | 可 | 
この物件をチェックした人はこんな物件も見ています
- 高松市内を東西に走るパークロード沿いの貸倉庫です♪3坪サイズ(約6帖)で、収納にお困りのお客様へはこちらの倉庫がおススメです!
 
香川県高松市上之町3-2-7
 
          11.50m2(3.48坪)
          33,000円(税込)        
- ◆県道33号高松丸亀線沿い◆高松市内を東西に結ぶ33号線沿いのオフィスビルです!エレベーター・警備保障も付いています♪
 
香川県高松市中央町3-13
 
          46.32m2(14.01坪)
          81,481円(税込)        
- 【香川県高松市香西本町の貸倉庫】 ◆さぬき浜街道の北側エリア◆ 駐車場1台込
 
香川県高松市香西本町-751―9
 
          85.41m2(25.84坪)
          49,500円(税込)        
- 中央通り沿いのR型の外観が特徴の8階建て5F部分 28.11坪のオフィス物件です。敷地内に立体駐車場が用意されています。ことでん瓦町駅まで徒歩10分。
 
香川県高松市中新町-11番地1
 
          92.93m2(28.11坪)
          賃料未定        
- 浜街道南側エリアのビル1F部分18.16坪の店舗物件です。事務所として使用することも可能。建物近隣に月極駐車場有り(別契約)です。
 
香川県高松市香西北町79-10
 
          60.04m2(18.16坪)
          49,500円(税込)        
今日チェックした物件
お急ぎの方はお電話からお気軽にどうぞ!
087-814-4030 営業時間 / 9:30〜17:30 定休日 / 水曜、日曜、祝日


087-814-4030









       
             
      

          




087-814-4030