情報更新日:2023年06月22日/広告有効期限:なし
表示閲覧回数(過去30日間):17
お急ぎの方はお電話からお気軽にどうぞ!
087-814-4030 営業時間 / 9:30〜17:30 定休日 / 水曜、日曜、祝日
>物件詳細情報
| 基本情報 | |
|---|---|
| 物件番号 | 3804 | 
| 店舗形態 | 事務所 | 
| オススメ業種 | 事務所 | 
| 物件名 | P3台付・WLC事務所205号【勅使町】テナント | 
| 物件の状態 | 入居中 | 
| 引越し時期 | 相談 | 
| 契約形態と期間 | 
        普通契約期間:2年間 | 
    
| 所在地・交通 | |
|---|---|
| 所在地 | 香川県高松市勅使町-1168―1 | 
| 交 通1 | ことでん琴平線一宮駅 徒歩33 | 
| 交 通2 | - | 
| 賃料 | |
|---|---|
| 賃 料 | 73,498円(税込) | 
| 敷 金 | 
      3ヶ月 | 
| 共益費・管理費 | 5,500円(税込) | 
| その他月額費用 2 | 水利費 1,500円(税込) | 
| 精算方法 | 実費 | 
| その他 | |
|---|---|
| 備考 | ■駐車場3台まで無料・上限台数は要相談■セコム費用6,380円(税込)■電気錠システム:解除キー1個1000円(税抜)■ネット環境:各自手配■床仕様:パンチングシート■建物内土足■ゴミ回収は各自手配■鍵交換費用別途必要■看板、サイン工事は借主負担■仲介手数料:賃料1カ月分■賃貸保証等:加入要■店舗保険加入要 | 
| 建物 | |
|---|---|
| 建物構造 | 鉄骨造 | 
| 建物階建て | 
      地上2階 | 
| 施工年月 | 2018(平成30)年 05月 | 
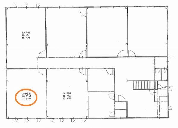
| 募集物件の階数 | 地上 2階 205号室 | 
| 契約面積 | 38.07m2(11.52坪) | 
| 分割利用 | 可 | 
| 用途地域 | 準工業 | 
| 設備 | |
|---|---|
| 水道 | 公営 | 
| 下水道 | 浄化槽 | 
| エレベータ | 無 | 
| エアコン | 有り/個別 | 
| トイレ | 有/共用 | 
| 給湯室 | 有/共用 | 
| キッチン | 無 | 
| ネット環境 | 無 | 
| セキュリティ | 無 | 
| 利用時間 | 24時間 | 
| シャッター | 無 | 
| 照明設備 | 有 | 
| 内装業者指定 | 有 | 
| 駐車場 | |
|---|---|
| 状 況 | 空有無料 | 
| 空き台数 | 6台 | 
| 取引情報 | |
|---|---|
| 取引態様 | 媒介 | 
| 客付 | 可 | 
この物件をチェックした人はこんな物件も見ています
- フェリー通りを東に入った場所で、6階建てマンションの1F18.69坪の物件です。隠れ家的な店舗をお考えの方におススメです。近隣駐車場の相場は15,000円です。
 
香川県高松市観光通1-4-1
 
          61.78m2(18.69坪)
          154,000円(税込)        
- 【高松市番町の貸オフィス】◆中央通り沿い◆ 高松市内中心部の「中央通り」沿いの物件です♪東面窓からは高松城、屋島が望めて、室内はもちろん共用部もキレイな物件です。JR高松駅も徒歩2分の便利な場所です!
 
香川県高松市寿町1-1-8
 
          63.42m2(19.18坪)
          賃料未定        
- 田村ビル1F【栗林町】テナント
 
香川県高松市栗林町1-3-16
 
          84.92m2(25.69坪)
          152,776円(税込)        
- シンボルタワー10F-A【サンポート】テナント
 
香川県高松市サンポート-2―1
 
          89.02m2(26.93坪)
          賃料未定        
- 中央通り沿いのR型の外観が特徴の8階建て5F部分 28.11坪のオフィス物件です。敷地内に立体駐車場が用意されています。ことでん瓦町駅まで徒歩10分。
 
香川県高松市中新町-11番地1
 
          92.93m2(28.11坪)
          賃料未定        
今日チェックした物件
お急ぎの方はお電話からお気軽にどうぞ!
087-814-4030 営業時間 / 9:30〜17:30 定休日 / 水曜、日曜、祝日


087-814-4030












                   
      

          




087-814-4030