情報更新日:2022年05月24日/広告有効期限:なし
表示閲覧回数(過去30日間):13
お急ぎの方はお電話からお気軽にどうぞ!
087-814-4030 営業時間 / 9:30〜17:30 定休日 / 水曜、日曜、祝日
>物件詳細情報
| 基本情報 | |
|---|---|
| 物件番号 | 3646 |
| 店舗形態 | 事務所 |
| オススメ業種 | 塾・学校・教育関係, 事務所 |
| 物件名 | D-ビル【塩上町】2,3F号 |
| 物件の状態 | 空き |
| 引越し時期 | 即 |
| 契約形態と期間 |
普通契約期間:2年間 |
| 所在地・交通 | |
|---|---|
| 所在地 | 香川県高松市塩上町-12-5 |
| 交 通1 | ことでん琴平線瓦町駅 徒歩5 |
| 交 通2 | - |
| 賃料 | |
|---|---|
| 賃 料 | 330,000円(税込) |
| 敷 金 |
6ヶ月 |
| 共益費・管理費 | 22,000円(税込) |
| 精算方法 | 実費 |
| その他 | |
|---|---|
| 備考 | ■ゴミ回収は各自業者手配■鍵交換費用別途必要■看板、サイン工事は借主負担■仲介手数料:賃料1ヶ月分■賃貸保証等:加入要(賃料保証会社に加入の事。初年度賃料の100%、2年目以降滞納無の場合10000円/年)■店舗総合保険加入■現在電気系統1ヶ所の為、縁切り工事の要有り(1ヶ月程度時間を要します) |
| 建物 | |
|---|---|
| 建物構造 | 鉄骨造 |
| 建物階建て |
地上8階 |
| 施工年月 | 1991(平成3)年 06月 |
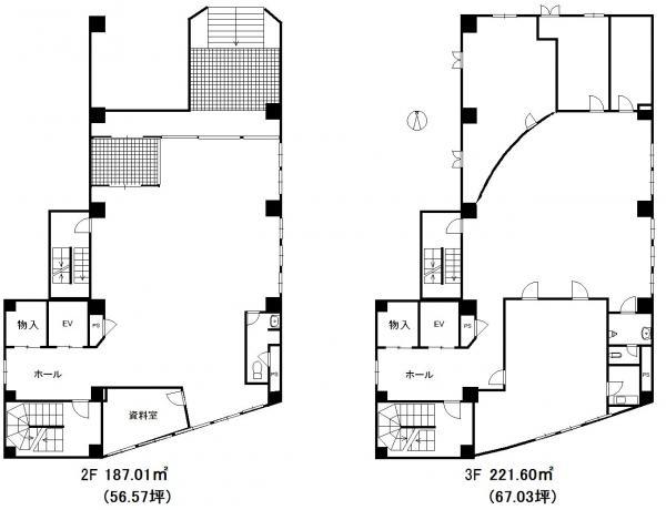
| 募集物件の階数 | 地上 2階 2,3F号室 |
| 契約面積 | 408.61m2(123.60坪) |
| 用途地域 | |
| 設備 | |
|---|---|
| 水道 | 公営 |
| 下水道 | 公共下水 |
| エレベータ | 有 |
| エアコン | 有り/個別 |
| トイレ | 有/専用 |
| 給湯室 | 無 |
| キッチン | 有/共用 |
| ネット環境 | 無 |
| 床仕様 | CFシート |
| セキュリティ | 無 |
| 利用時間 | 24時間 |
| シャッター | 無 |
| 照明設備 | 有 |
| 内装業者指定 | 無 |
| 駐車場 | |
|---|---|
| 状 況 | 空有 |
| 駐車料金 | 22,000円(税込) |
| 空き台数 | 3台 |
| 取引情報 | |
|---|---|
| 取引態様 | 媒介 |
| 客付 | 可 |
この物件をチェックした人はこんな物件も見ています
- 【高松市番町の貸オフィス】◆中央通り沿い◆ 高松市内中心部の「中央通り」沿いの物件です♪東面窓からは高松城、屋島が望めて、室内はもちろん共用部もキレイな物件です。JR高松駅も徒歩2分の便利な場所です!

香川県高松市寿町1-1-8
63.42m2(19.18坪)
賃料未定
- フェリー通りを東に入った場所で、6階建てマンションの1F18.69坪の物件です。隠れ家的な店舗をお考えの方におススメです。近隣駐車場の相場は15,000円です。

香川県高松市観光通1-4-1
61.78m2(18.69坪)
154,000円(税込)
- 中村第一ビル6F西号【塩上町】国道11号線沿いの鏡面仕上げの外観が特徴の7階建て4階部分34.3坪のオフィスビルです。駐車場は近隣相場税込16,500円です。ことでん今橋駅まで徒歩3分。

香川県高松市塩上町3-2-4
58.96m2(17.84坪)
99,000円(税込)
- ◆美術館通り沿い◆

香川県高松市番町1--3-1
105.79m2(32.00坪)
176,000円(税込)
- ◆県道33号高松丸亀線沿い◆高松市内を東西に結ぶ33号線沿いのオフィスビルです!エレベーター・警備保障も付いています♪

香川県高松市中央町3-13
46.32m2(14.01坪)
81,481円(税込)
今日チェックした物件
お急ぎの方はお電話からお気軽にどうぞ!
087-814-4030 営業時間 / 9:30〜17:30 定休日 / 水曜、日曜、祝日


087-814-4030

















087-814-4030