情報更新日:2025年08月01日/広告有効期限:なし
表示閲覧回数(過去30日間):21
お急ぎの方はお電話からお気軽にどうぞ!
087-814-4030 営業時間 / 9:30〜17:30 定休日 / 水曜、日曜、祝日
>物件詳細情報
| 基本情報 | |
|---|---|
| 物件番号 | 3354 | 
| 店舗形態 | 事務所 | 
| オススメ業種 | 事務所 | 
| 物件名 | 高松センタービル8E【寿町】中央通りテナント | 
| 物件の状態 | 空き | 
| 引越し時期 | 相談 | 
| 契約形態と期間 | 
        普通 | 
    
| 所在地・交通 | |
|---|---|
| 所在地 | 香川県高松市寿町2-4-20 | 
| 交 通1 | ことでん琴平線高松築港駅 徒歩6 | 
| 交 通2 | - | 
| 賃料 | |
|---|---|
| 賃 料 | 321,970円(税込) | 
| 敷 金 | 
      12ヶ月 | 
| 共益費・管理費 | 225,377円(税込) | 
| その他 | |
|---|---|
| 備考 | ■鍵交換費用別途必要■看板、サイン工事は借主負担■仲介手数料:賃料1か月分■賃貸保証等:加入要(賃料保証会社に加入の事。初年度賃料の100%、2年目以降滞納無しの場合10,000円/年)■解約予告:6カ月前■防火対象物使用開始届出書については借主にて提出■建物用途変更手続きについては借主負担 | 
| 建物 | |
|---|---|
| 建物構造 | 鉄骨鉄筋コンクリート造 | 
| 建物階建て | 
      地上12階 地下2階 | 
| 施工年月 | 1974(昭和49)年 03月 | 
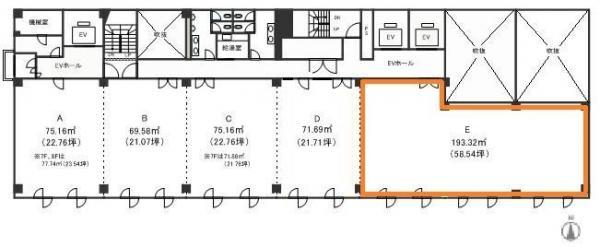
| 募集物件の階数 | 地上 8階 E号室 | 
| 契約面積 | 193.52m2(58.54坪) | 
| 分割利用 | 可 | 
| 用途地域 | |
| 設備 | |
|---|---|
| 水道 | 公営 | 
| 下水道 | 公共下水 | 
| エレベータ | 有/2基 | 
| エアコン | 有り/個別 | 
| トイレ | 有/共用 | 
| 給湯室 | 有/共用 | 
| キッチン | 有/共用 | 
| 床仕様 | タイルカーペット | 
| セキュリティ | 管理人常駐 | 
| 利用時間 | 24時間 | 
| シャッター | 無 | 
| 照明設備 | 有 | 
| 内装業者指定 | 有 | 
| 駐車場 | |
|---|---|
| 状 況 | 空有 | 
| 駐車料金 | 22,000円(税込) | 
| 取引情報 | |
|---|---|
| 取引態様 | 媒介 | 
| 客付 | 可 | 
この物件をチェックした人はこんな物件も見ています
- ◆美術館通り沿い◆
 
香川県高松市番町1--3-1
 
          105.79m2(32.00坪)
          176,000円(税込)        
- 【香川県高松市香西本町の貸倉庫】 ◆さぬき浜街道の北側エリア◆ 駐車場1台込
 
香川県高松市香西本町-751―9
 
          85.41m2(25.84坪)
          49,500円(税込)        
- ◆県道33号高松丸亀線沿い◆高松市内を東西に結ぶ33号線沿いのオフィスビルです!エレベーター・警備保障も付いています♪
 
香川県高松市中央町3-13
 
          46.32m2(14.01坪)
          81,481円(税込)        
- 【高松市番町の貸オフィス】◆中央通り沿い◆ 高松市内中心部の「中央通り」沿いの物件です♪東面窓からは高松城、屋島が望めて、室内はもちろん共用部もキレイな物件です。JR高松駅も徒歩2分の便利な場所です!
 
香川県高松市寿町1-1-8
 
          63.42m2(19.18坪)
          賃料未定        
- シンボルタワー12F-B【サンポート】テナント
 
香川県高松市サンポート-2―1
 
          87.80m2(26.56坪)
          賃料未定        
今日チェックした物件
お急ぎの方はお電話からお気軽にどうぞ!
087-814-4030 営業時間 / 9:30〜17:30 定休日 / 水曜、日曜、祝日


087-814-4030







                   
      

          




087-814-4030