情報更新日:2025年08月01日/広告有効期限:なし
表示閲覧回数(過去30日間):25
お急ぎの方はお電話からお気軽にどうぞ!
087-814-4030 営業時間 / 9:30〜17:30 定休日 / 水曜、日曜、祝日
>物件詳細情報
| 基本情報 | |
|---|---|
| 物件番号 | 3350 | 
| 店舗形態 | 事務所 | 
| オススメ業種 | 事務所 | 
| 物件名 | 高松センタービル7A【寿町】中央通りテナント | 
| 物件の状態 | 空き | 
| 引越し時期 | 相談 | 
| 契約形態と期間 | 
        普通契約期間:2年間 | 
    
| 所在地・交通 | |
|---|---|
| 所在地 | 香川県高松市寿町2-4-20 | 
| 交 通1 | ことでん琴平線高松築港駅 徒歩6 | 
| 交 通2 | - | 
| 賃料 | |
|---|---|
| 賃 料 | 賃料未定 | 
| 敷 金 | 
      12ヶ月 | 
| 共益費・管理費 | 90,627円(税込) | 
| その他 | |
|---|---|
| 備考 | ■看板、サイン工事は借主実費負担■仲介手数料:賃料1ヶ月分 | 
| 建物 | |
|---|---|
| 建物構造 | 鉄骨鉄筋コンクリート造 | 
| 建物階建て | 
      地上12階 地下2階 | 
| 施工年月 | 1974(昭和49)年 03月 | 
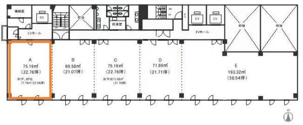
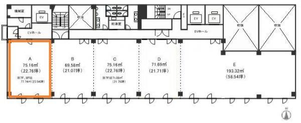
| 募集物件の階数 | 地上 7階 A号室 | 
| 契約面積 | 77.74m2(23.52坪) | 
| 用途地域 | |
| 設備 | |
|---|---|
| 水道 | 公営 | 
| 下水道 | 公共下水 | 
| エレベータ | 有/2基 | 
| エアコン | 有り/個別 | 
| トイレ | 有/共用 | 
| 給湯室 | 有/共用 | 
| キッチン | 有/共用 | 
| 床仕様 | タイルカーペット | 
| セキュリティ | 管理人常駐 | 
| 利用時間 | 24時間 | 
| シャッター | 無 | 
| 照明設備 | 有 | 
| 内装業者指定 | 有 | 
| 駐車場 | |
|---|---|
| 状 況 | 空有 | 
| 駐車料金 | 22,000円(税込) | 
| 取引情報 | |
|---|---|
| 取引態様 | 媒介 | 
| 客付 | 可 | 
この物件をチェックした人はこんな物件も見ています
- ◆美術館通り沿い◆
 
香川県高松市番町1--3-1
 
          105.79m2(32.00坪)
          176,000円(税込)        
- シンボルタワー12F-B【サンポート】テナント
 
香川県高松市サンポート-2―1
 
          87.80m2(26.56坪)
          賃料未定        
- 【香川県高松市香西本町の貸倉庫】 ◆さぬき浜街道の北側エリア◆ 駐車場1台込
 
香川県高松市香西本町-751―9
 
          85.41m2(25.84坪)
          49,500円(税込)        
- ことでん瓦町駅まで徒歩6分。 中央通り沿いのガラス張りの外壁が特徴の10階建て2F部分69.73坪のオフィス物件です。近隣駐車場の相場は25,000円~です。
 
香川県高松市亀井町8-11
 
          230.52m2(69.73坪)
          賃料未定        
- 【香川県高松市天神前の貸オフィス】 ◆中央通り沿い◆高松市内の高松中央通り沿いのオフィス物件です!ビル地下に専用駐輪場有り。館内に別途会議室スペースを設置しており、テナント様の利便を図っています♪瓦町駅まで徒歩8分で、市内中心部でオフィスをお探しの方におススメです。
 
香川県高松市天神前10-1
 
          56.13m2(16.98坪)
          186,780円(税込)        
今日チェックした物件
お急ぎの方はお電話からお気軽にどうぞ!
087-814-4030 営業時間 / 9:30〜17:30 定休日 / 水曜、日曜、祝日


087-814-4030









                   
      

          




087-814-4030