情報更新日:2025年08月01日/広告有効期限:なし
表示閲覧回数(過去30日間):50
お急ぎの方はお電話からお気軽にどうぞ!
087-814-4030 営業時間 / 9:30〜17:30 定休日 / 水曜、日曜、祝日
>物件詳細情報
| 基本情報 | |
|---|---|
| 物件番号 | 2822 | 
| 店舗形態 | 事務所 | 
| オススメ業種 | 事務所 | 
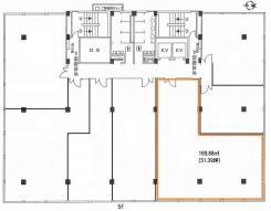
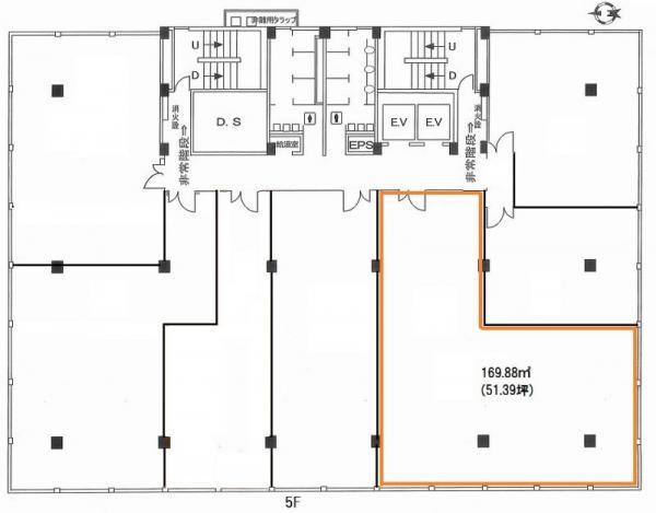
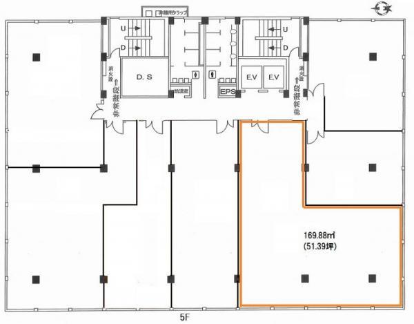
| 物件名 | 香川三友ビル5F EF号【鍛冶屋町】テナント | 
| 物件の状態 | 空き | 
| 引越し時期 | 相談 | 
| 契約形態と期間 | 
        普通契約期間:2年間 | 
    
| 所在地・交通 | |
|---|---|
| 所在地 | 香川県高松市鍛冶屋町-3 | 
| 交 通1 | ことでん琴平線片原町駅 徒歩11 | 
| 交 通2 | - | 
| 賃料 | |
|---|---|
| 賃 料 | 537,023円(税込) | 
| 敷 金 | 
      10ヶ月 | 
| その他 | |
|---|---|
| 備考 | ■鍵交換費用別途必要■看板、サイン工事は借主実費負担■現況:事務所仕様■仲介手数料:賃料1ヶ月 | 
| 建物 | |
|---|---|
| 建物構造 | 鉄骨鉄筋コンクリート造 | 
| 建物階建て | 
      地上9階 | 
| 施工年月 | 1974(昭和49)年 | 
| 募集物件の階数 | 地上 5階 5 EF号室 | 
| 契約面積 | 169.88m2(51.39坪) | 
| 用途地域 | |
| 設備 | |
|---|---|
| 水道 | 公営 | 
| 下水道 | 公共下水 | 
| 駐車場 | |
|---|---|
| 状 況 | 空有 | 
| 駐車料金 | 22,000円(税込) | 
| 取引情報 | |
|---|---|
| 取引態様 | 媒介 | 
| 客付 | 可 | 
この物件をチェックした人はこんな物件も見ています
- シンボルタワー10F-A【サンポート】テナント
 
香川県高松市サンポート-2―1
 
          89.02m2(26.93坪)
          賃料未定        
- 中村第一ビル6F西号【塩上町】国道11号線沿いの鏡面仕上げの外観が特徴の7階建て4階部分34.3坪のオフィスビルです。駐車場は近隣相場税込16,500円です。ことでん今橋駅まで徒歩3分。
 
香川県高松市塩上町3-2-4
 
          58.96m2(17.84坪)
          99,000円(税込)        
- 【高松市番町の貸オフィス】◆中央通り沿い◆ 高松市内中心部の「中央通り」沿いの物件です♪東面窓からは高松城、屋島が望めて、室内はもちろん共用部もキレイな物件です。JR高松駅も徒歩2分の便利な場所です!
 
香川県高松市寿町1-1-8
 
          63.42m2(19.18坪)
          賃料未定        
- フェリー通りを東に入った場所で、6階建てマンションの1F18.69坪の物件です。隠れ家的な店舗をお考えの方におススメです。近隣駐車場の相場は15,000円です。
 
香川県高松市観光通1-4-1
 
          61.78m2(18.69坪)
          154,000円(税込)        
- ◆美術館通り沿い◆
 
香川県高松市番町1--3-1
 
          105.79m2(32.00坪)
          176,000円(税込)        
今日チェックした物件
お急ぎの方はお電話からお気軽にどうぞ!
087-814-4030 営業時間 / 9:30〜17:30 定休日 / 水曜、日曜、祝日


087-814-4030








                   
      

          




087-814-4030