情報更新日:2025年08月01日/広告有効期限:なし
表示閲覧回数(過去30日間):25
お急ぎの方はお電話からお気軽にどうぞ!
087-814-4030 営業時間 / 9:30〜17:30 定休日 / 水曜、日曜、祝日
>物件詳細情報
| 基本情報 | |
|---|---|
| 物件番号 | 2218 | 
| 店舗形態 | 事務所 | 
| オススメ業種 | 事務所 | 
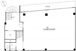
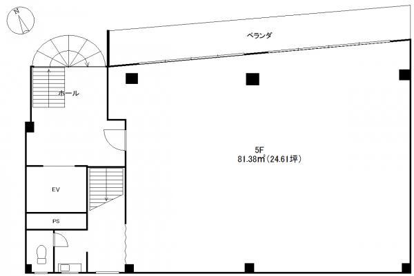
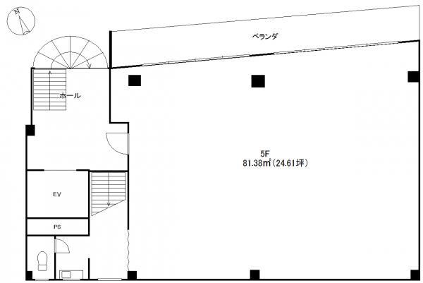
| 物件名 | 藤ビル5F【鍛冶屋町】テナント | 
| 物件の状態 | 空き | 
| 引越し時期 | 即 | 
| 契約形態と期間 | 
        普通契約期間:2年間 | 
    
| 所在地・交通 | |
|---|---|
| 所在地 | 香川県高松市鍛冶屋町-4―7 | 
| 交 通1 | ことでん琴平線瓦町駅 徒歩11 | 
| 交 通2 | - | 
| 賃料 | |
|---|---|
| 賃 料 | 176,000円(税込) | 
| 敷 金 | 
      3ヶ月 | 
| 共益費・管理費 | 16,500円(税込) | 
| その他月額費用 1 | 水道料 2,000円(税込) | 
| その他 | |
|---|---|
| 備考 | ■ゴミの回収は各自で業者手配■鍵交換費用別途必要■看板、サイン工事は借主実費負担■仲介手数料:賃料1ヶ月 | 
| 建物 | |
|---|---|
| 建物構造 | 鉄骨造 | 
| 建物階建て | 
      地上6階 | 
| 施工年月 | 1993(平成5)年 01月 | 
| 募集物件の階数 | 地上 5階 | 
| 契約面積 | 81.38m2(24.62坪) | 
| 用途地域 | |
| 設備 | |
|---|---|
| 水道 | 公営 | 
| エレベータ | 有 | 
| エアコン | 有 | 
| トイレ | 有/専用 | 
| キッチン | 有/専用 | 
| 照明設備 | 有 | 
| 内装業者指定 | 無 | 
| 駐車場 | |
|---|---|
| 状 況 | 無し | 
| 取引情報 | |
|---|---|
| 取引態様 | 媒介 | 
| 客付 | 可 | 
この物件をチェックした人はこんな物件も見ています
- 【香川県高松市塩上町の貸オフィス】 ◆瓦町エリア・国道11号線南側◆琴電琴平線の瓦町駅まで徒歩4分です♪高松第一小中学校にも近いので、学習塾などもいかがでしょうか?
 
香川県高松市塩上町3-14-14
 
          36.67m2(11.09坪)
          55,000円(税込)        
- 【高松市番町の貸オフィス】◆中央通り沿い◆ 高松市内中心部の「中央通り」沿いの物件です♪東面窓からは高松城、屋島が望めて、室内はもちろん共用部もキレイな物件です。JR高松駅も徒歩2分の便利な場所です!
 
香川県高松市寿町1-1-8
 
          63.42m2(19.18坪)
          賃料未定        
- 高松市内を東西に走るパークロード沿いの貸倉庫です♪3坪サイズ(約6帖)で、収納にお困りのお客様へはこちらの倉庫がおススメです!
 
香川県高松市上之町3-2-7
 
          11.50m2(3.48坪)
          33,000円(税込)        
- 花房住宅ビル
 
香川県高松市国分寺町新名-26―2
 
          84.95m2(25.70坪)
          130,828円(税込)        
- 国道11号線沿いの鏡面仕上げの外観が特徴の7階建て6階部分34.3坪のオフィスビルです。駐車場は近隣相場税込16,500円です。
 
香川県高松市塩上町3-2-4
 
          113.38m2(34.30坪)
          187,000円(税込)        
今日チェックした物件
お急ぎの方はお電話からお気軽にどうぞ!
087-814-4030 営業時間 / 9:30〜17:30 定休日 / 水曜、日曜、祝日


087-814-4030









                   
      

          




087-814-4030