情報更新日:2026年04月03日/広告有効期限:なし
表示閲覧回数(過去30日間):16
お急ぎの方はお電話からお気軽にどうぞ!
087-814-4030 営業時間 / 9:30〜17:30 定休日 / 水曜、日曜、祝日
>物件詳細情報
| 基本情報 | |
|---|---|
| 物件番号 | 2067 |
| 店舗形態 | 事務所 |
| オススメ業種 | |
| 物件名 | 丸協ビル1F【今里町】レインボーエリアテナント |
| 物件の状態 | 空き |
| 引越し時期 | 相談 |
| 契約形態と期間 |
普通契約期間:2年間 |
| 所在地・交通 | |
|---|---|
| 所在地 | 香川県高松市今里町2-29-21 |
| 交 通1 | ことでん長尾線林道駅 徒歩13 |
| 交 通2 | - |
| 賃料 | |
|---|---|
| 賃 料 | 418,000円(税込) |
| 敷 金 |
6ヶ月 |
| その他 | |
|---|---|
| 備考 | ■ゴミ回収各自手配■鍵交換費別途■看板、サイン工事借主負担■仲介手数料:賃料1ヶ月分■敷地内駐車場12区画(賃料77,000円)■空調及び照明器具の動作確認は貸主側で行いますが、使用不可の場合の修理は貸主は致しません。 |
| 建物 | |
|---|---|
| 建物構造 | 鉄骨造 |
| 建物階建て |
地上2階 |
| 施工年月 | 1998(平成10)年 01月 |
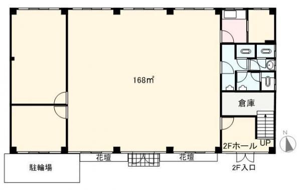
| 募集物件の階数 | 地上 1階 1号室 |
| 契約面積 | 175.31m2(53.03坪) |
| 用途地域 | 商業地域 |
| 設備 | |
|---|---|
| 水道 | 公営 |
| 下水道 | 公共下水 |
| エレベータ | 無 |
| エアコン | 有り/個別 |
| トイレ | 有/専用 |
| キッチン | 有/専用 |
| 床仕様 | CFシート |
| セキュリティ | 無 |
| 利用時間 | 24時間 |
| シャッター | 無 |
| 照明設備 | 有 |
| 内装業者指定 | 無 |
| 駐車場 | |
|---|---|
| 状 況 | 空有 |
| 駐車料金 | 77,000円(税込) |
| 空き台数 | 12台 |
| 取引情報 | |
|---|---|
| 取引態様 | 媒介 |
| 客付 | 可 |
この物件をチェックした人はこんな物件も見ています
- 【高松市番町の貸オフィス】◆中央通り沿い◆ 高松市内中心部の「中央通り」沿いの物件です♪東面窓からは高松城、屋島が望めて、室内はもちろん共用部もキレイな物件です。JR高松駅も徒歩2分の便利な場所です!

香川県高松市寿町1-1-8
63.42m2(19.18坪)
賃料未定
- ◆美術館通り沿い◆

香川県高松市番町1--3-1
105.79m2(32.00坪)
176,000円(税込)
- 坂出市事業用借地(西庄町966番5・966番3)

香川県坂出市西庄町
266.62m2(80.65坪)
55,000円(税込)
- ◆県道33号高松丸亀線沿い◆高松市内を東西に結ぶ33号線沿いのオフィスビルです!エレベーター・警備保障も付いています♪

香川県高松市中央町3-13
46.32m2(14.01坪)
81,481円(税込)
- 市内を東西に結ぶ県道33号線沿いのオフィス物件です。室内の大きさは色々なタイプがあります。敷地内に駐車スペースをご用意しております(1台12,000円+税)ので、駐車場付オフィスをお考えのテナント様、是非ご覧下さいませ。

香川県高松市宮脇町1-1-23
64m2(19.36坪)
93,500円(税込)
今日チェックした物件
お急ぎの方はお電話からお気軽にどうぞ!
087-814-4030 営業時間 / 9:30〜17:30 定休日 / 水曜、日曜、祝日


087-814-4030



















087-814-4030