情報更新日:2025年08月01日/広告有効期限:なし
表示閲覧回数(過去30日間):21
お急ぎの方はお電話からお気軽にどうぞ!
087-814-4030 営業時間 / 9:30〜17:30 定休日 / 水曜、日曜、祝日
>物件詳細情報
| 基本情報 | |
|---|---|
| 物件番号 | 1946 |
| 店舗形態 | 事務所 |
| オススメ業種 | 事務所 |
| 物件名 | 甲南アセット番町ビル502号室【番町】40.50坪 |
| 物件の状態 | 空き |
| 引越し時期 | 即 |
| 契約形態と期間 |
普通契約期間:2年間 |
| 所在地・交通 | |
|---|---|
| 所在地 | 香川県高松市番町1-6-6 |
| 交 通1 | JR予讃線高松駅 徒歩12 |
| 交 通2 | - |
| 賃料 | |
|---|---|
| 賃 料 | 賃料未定 |
| 敷 金 |
3,564,000円 |
| 共益費・管理費 | 133,650円(税込) |
| 精算方法 | 実費 |
| その他 | |
|---|---|
| 備考 | ■家賃保証会社加入要■警備料3,000円(税別)/月■仲介手数料:賃料1ヶ月分(税別) |
| 建物 | |
|---|---|
| 建物構造 | 鉄骨鉄筋コンクリート造 |
| 建物階建て |
地上10階 地下1階 |
| 施工年月 | 1994(平成6)年 10月 |
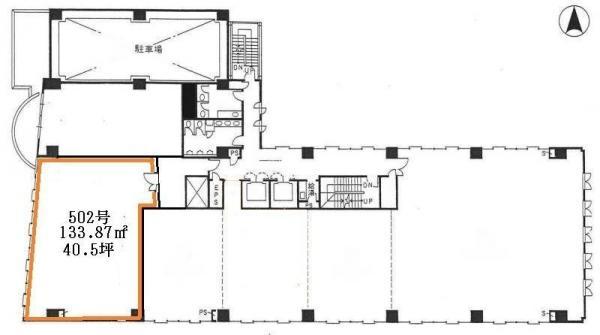
| 募集物件の階数 | 地上 5階 502号室 |
| 契約面積 | 133.87m2(40.50坪) |
| 用途地域 | |
| 設備 | |
|---|---|
| 水道 | 公営 |
| 下水道 | 公共下水 |
| ガス | 都市ガス |
| エレベータ | 有 |
| エアコン | 有り/個別 |
| トイレ | 有/共用 |
| 給湯室 | 有/共用 |
| キッチン | 有/共用 |
| 床仕様 | タイルカーペット |
| セキュリティ | 管理人常駐 |
| 利用時間 | 24時間 |
| シャッター | 無 |
| 照明設備 | 有 |
| 内装業者指定 | 無 |
| 駐車場 | |
|---|---|
| 状 況 | 空有 |
| 駐車料金 | 33,000円(税込) |
| 空き台数 | 2台 |
| 敷 金 | 6 |
| 取引情報 | |
|---|---|
| 取引態様 | 媒介 |
| 客付 | 可 |
この物件をチェックした人はこんな物件も見ています
- ◆県道33号高松丸亀線沿い◆高松市内を東西に結ぶ33号線沿いのオフィスビルです!エレベーター・警備保障も付いています♪

香川県高松市中央町3-13
46.32m2(14.01坪)
81,481円(税込)
- 坂出市事業用借地(西庄町966番5・966番3)

香川県坂出市西庄町
266.62m2(80.65坪)
55,000円(税込)
- 市内を東西に結ぶ県道33号線沿いのオフィス物件です。室内の大きさは色々なタイプがあります。敷地内に駐車スペースをご用意しております(1台12,000円+税)ので、駐車場付オフィスをお考えのテナント様、是非ご覧下さいませ。

香川県高松市宮脇町1-1-23
64m2(19.36坪)
93,500円(税込)
- 【香川県高松市鍛冶屋町の貸オフィス】 ◆中央通りエリア◆高松市内のオフィス街である中央通りと美術館通りのおしゃれなエリアに挟まれた、紺屋町のオフィス物件です。建物北側に丸亀町北駐車場があり、月極め駐車場として使用可能です(空き要確認)

香川県高松市紺屋町-1―3
124.42m2(37.64坪)
賃料未定
- ◆美術館通り沿い◆

香川県高松市番町1--3-1
105.79m2(32.00坪)
176,000円(税込)
今日チェックした物件
お急ぎの方はお電話からお気軽にどうぞ!
087-814-4030 営業時間 / 9:30〜17:30 定休日 / 水曜、日曜、祝日


087-814-4030

















087-814-4030