情報更新日:2024年09月13日/広告有効期限:なし
表示閲覧回数(過去30日間):31
お急ぎの方はお電話からお気軽にどうぞ!
087-814-4030 営業時間 / 9:30〜17:30 定休日 / 水曜、日曜、祝日
>物件詳細情報
| 基本情報 | |
|---|---|
| 物件番号 | 4330 |
| 店舗形態 | 店舗(飲食店可), 店舗, 路面店舗, |
| オススメ業種 | 物販関係, 軽飲食, 重飲食, サービス業 |
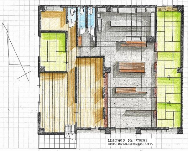
| 物件名 | MN店舗1F【香川町川東】 |
| 物件の状態 | 空き |
| 引越し時期 | 即 |
| 契約形態と期間 |
普通契約期間:2年間 |
| 所在地・交通 | |
|---|---|
| 所在地 | 香川県高松市香川町川東上1764番地 |
| 交 通1 | ことでん琴平線空港通り駅 徒歩57 |
| 交 通2 | - |
| 賃料 | |
|---|---|
| 賃 料 | 121,000円(税込) |
| 敷 金 |
5ヶ月 |
| 精算方法 | 実費 |
| その他 | |
|---|---|
| 備考 | ■ゴミ回収は各自業者手配■鍵交換費用別途必要■看板、サイン工事は借主負担■エアコン修理交換は借主負担■仲介手数料:賃料1か月分■賃貸保証等:加入要(賃料保証会社に加入の事。初年度賃料の100%、2年目以降滞納無しの場合10,000円/年)■解約予告:3カ月前■防火対象物使用開始届出書については借主にて提出■建物用途変更手続きについては借主負担 |
| 建物 | |
|---|---|
| 建物構造 | 鉄骨造 |
| 建物階建て |
地上2階 |
| 施工年月 | 1994(平成6)年 12月 |
| 募集物件の階数 | 地上 1階 1F号室号室 |
| 契約面積 | 168m2(50.82坪) |
| 用途地域 | 商業地域 |
| 設備 | |
|---|---|
| 水道 | 公営 |
| ガス | LPG |
| エレベータ | 無 |
| エアコン | 有り/個別 |
| トイレ | 有/専用 |
| 給湯室 | 有/専用 |
| キッチン | 有/専用 |
| ネット環境 | 無 |
| 床仕様 | CFシート |
| セキュリティ | 無 |
| 利用時間 | 24時間 |
| シャッター | 有/自動 |
| 照明設備 | 有 |
| 内装業者指定 | 無 |
| 駐車場 | |
|---|---|
| 状 況 | 空有無料 |
| 空き台数 | 6台 |
| 取引情報 | |
|---|---|
| 取引態様 | 媒介 |
| 客付 | 可 |
この物件をチェックした人はこんな物件も見ています
- 坂出市事業用借地(西庄町966番5・966番3)

香川県坂出市西庄町
266.62m2(80.65坪)
55,000円(税込)
- ◆県道33号高松丸亀線沿い◆高松市内を東西に結ぶ33号線沿いのオフィスビルです!エレベーター・警備保障も付いています♪

香川県高松市中央町3-13
46.32m2(14.01坪)
81,481円(税込)
- 市内を東西に結ぶ県道33号線沿いのオフィス物件です。室内の大きさは色々なタイプがあります。敷地内に駐車スペースをご用意しております(1台12,000円+税)ので、駐車場付オフィスをお考えのテナント様、是非ご覧下さいませ。

香川県高松市宮脇町1-1-23
64m2(19.36坪)
93,500円(税込)
- 【香川県高松市鍛冶屋町の貸オフィス】 ◆中央通りエリア◆高松市内のオフィス街である中央通りと美術館通りのおしゃれなエリアに挟まれた、紺屋町のオフィス物件です。建物北側に丸亀町北駐車場があり、月極め駐車場として使用可能です(空き要確認)

香川県高松市紺屋町-1―3
124.42m2(37.64坪)
賃料未定
- 高松市内を東西に走るパークロード沿いの貸倉庫です♪3坪サイズ(約6帖)で、収納にお困りのお客様へはこちらの倉庫がおススメです!

香川県高松市上之町3-2-7
11.50m2(3.48坪)
33,000円(税込)
今日チェックした物件
お急ぎの方はお電話からお気軽にどうぞ!
087-814-4030 営業時間 / 9:30〜17:30 定休日 / 水曜、日曜、祝日


087-814-4030



















087-814-4030