情報更新日:2022年10月17日/広告有効期限:なし
表示閲覧回数(過去30日間):36
お急ぎの方はお電話からお気軽にどうぞ!
087-814-4030 営業時間 / 9:30〜17:30 定休日 / 水曜、日曜、祝日
>物件詳細情報
| 基本情報 | |
|---|---|
| 物件番号 | 3992 |
| 店舗形態 | 店舗(飲食店可), 路面店舗, ロードサイド |
| オススメ業種 | 塾・学校・教育関係, 物販関係, 軽飲食, ショールーム |
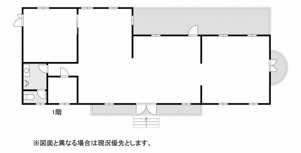
| 物件名 | 内外テナント1階【国分寺町福家】 |
| 物件の状態 | 空き |
| 引越し時期 | 相談 |
| 契約形態と期間 |
普通契約期間:3年間 |
| 所在地・交通 | |
|---|---|
| 所在地 | 香川県高松市国分寺町福家甲823--3 |
| 交 通1 | ことでん琴平線挿頭丘駅 徒歩13 |
| 交 通2 | - |
| 賃料 | |
|---|---|
| 賃 料 | 300,000円(税込) |
| 敷 金 |
3ヶ月 |
| 精算方法 | 実費 |
| 礼 金 | 1ヶ月 |
| その他 | |
|---|---|
| 備考 | ■礼金:1ヵ月分■ゴミ回収は各自業者手配■鍵交換費用別途発生■看板、サイン工事は借主負担■エアコン修理交換は借主負担■浄化槽維持管理は借主負担■仲介手数料:賃料1か月分■賃貸保証等:加入要■店舗総合保険:加入要■解約予告:3カ月前■防火対象物使用開始届出書については借主にて提出 |
| 建物 | |
|---|---|
| 建物構造 | 木造 |
| 建物階建て |
地上2階 |
| 施工年月 | 2001(平成13)年 04月 |
| 募集物件の階数 | 地上 1階 1階号室 |
| 契約面積 | 108.27m2(32.75坪) |
| 用途地域 | 指定無 |
| 設備 | |
|---|---|
| 水道 | 公営 |
| 下水道 | 浄化槽 |
| ガス | LPG |
| エレベータ | 無 |
| エアコン | 無 |
| トイレ | 有/専用 |
| 給湯室 | 無 |
| キッチン | 無 |
| ネット環境 | 無 |
| 床仕様 | CFシート |
| セキュリティ | 無 |
| 利用時間 | 24時間 |
| シャッター | 無 |
| 照明設備 | 無 |
| 内装業者指定 | 無 |
| 駐車場 | |
|---|---|
| 状 況 | 空有 |
| 空き台数 | 15台 |
| 取引情報 | |
|---|---|
| 取引態様 | 媒介 |
| 客付 | 可 |
この物件をチェックした人はこんな物件も見ています
- ◆美術館通り沿い◆

香川県高松市番町1--3-1
105.79m2(32.00坪)
176,000円(税込)
- 【香川県高松市香西本町の貸倉庫】 ◆さぬき浜街道の北側エリア◆ 駐車場1台込

香川県高松市香西本町-751―9
85.41m2(25.84坪)
49,500円(税込)
- ことでん瓦町駅まで徒歩6分。 中央通り沿いのガラス張りの外壁が特徴の10階建て2F部分69.73坪のオフィス物件です。近隣駐車場の相場は25,000円~です。

香川県高松市亀井町8-11
230.52m2(69.73坪)
賃料未定
- 【高松市番町の貸オフィス】◆中央通り沿い◆ 高松市内中心部の「中央通り」沿いの物件です♪東面窓からは高松城、屋島が望めて、室内はもちろん共用部もキレイな物件です。JR高松駅も徒歩2分の便利な場所です!

香川県高松市寿町1-1-8
63.42m2(19.18坪)
賃料未定
- シンボルタワー12F-B【サンポート】テナント

香川県高松市サンポート-2―1
87.80m2(26.56坪)
賃料未定
今日チェックした物件
- 国道11号線沿いの鏡面仕上げの外観が特徴の7階建て6階部分34.3坪のオフィスビルです。駐車場は近隣相場税込16,500円です。
-

香川県高松市塩上町3-2-4
113.38m2(34.30坪)
187,000円(税込)
- 空港通り沿いの店舗・事務所物件です。展示場として使用することも可能。敷地内駐車場:1台あたり5,500円で利用可能です。
-

香川県高松市上天神町780--6
209.99m2(63.52坪)
165,000円(税込)
- 空港通り沿いの店舗・事務所物件です。展示場として使用することも可能。敷地内駐車場:1台あたり5,500円で利用可能です。
-

香川県高松市上天神町780--6
180.87m2(54.71坪)
330,000円(税込)
お急ぎの方はお電話からお気軽にどうぞ!
087-814-4030 営業時間 / 9:30〜17:30 定休日 / 水曜、日曜、祝日


087-814-4030
















087-814-4030