情報更新日:2022年05月24日/広告有効期限:なし
表示閲覧回数(過去30日間):54
お急ぎの方はお電話からお気軽にどうぞ!
087-814-4030 営業時間 / 9:30〜17:30 定休日 / 水曜、日曜、祝日
>物件詳細情報
| 基本情報 | |
|---|---|
| 物件番号 | 3899 |
| 店舗形態 | 店舗, 路面店舗, |
| オススメ業種 | 医療関係, 塾・学校・教育関係, 物販関係, サービス業 |
| 物件名 | アイアイビル1,2F【南新町】 |
| 物件の状態 | 空き |
| 引越し時期 | 即 |
| 契約形態と期間 |
普通契約期間:2年間 |
| 所在地・交通 | |
|---|---|
| 所在地 | 香川県高松市南新町5--3 |
| 交 通1 | ことでん琴平線瓦町駅 徒歩6 |
| 交 通2 | - |
| 賃料 | |
|---|---|
| 賃 料 | 660,000円(税込) |
| 敷 金 |
10ヶ月 |
| 精算方法 | 実費 |
| その他 | |
|---|---|
| 備考 | ■水道料:実費■ゴミ回収は各自業者手配■鍵交換費用別途必要■看板、サイン工事は借主負担■仲介手数料:賃料1か月分■賃貸保証等:加入要■店舗総合保険:加入要■解約予告:3カ月前■防火対象物使用開始届出書については借主にて提出■建物用途変更手続きについては借主負担 |
| 建物 | |
|---|---|
| 建物構造 | 鉄筋コンクリート造 |
| 建物階建て |
地上5階 |
| 施工年月 | 1975(昭和50)年 04月 |
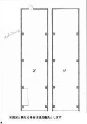
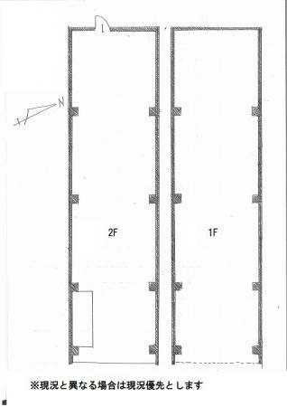
| 募集物件の階数 | 地上 1,2F号室 |
| 契約面積 | 352.16m2(106.53坪) |
| 用途地域 | |
| 設備 | |
|---|---|
| 水道 | 公営 |
| 下水道 | 公共下水 |
| エレベータ | 無 |
| エアコン | 無 |
| トイレ | 無 |
| 給湯室 | 無 |
| キッチン | 無 |
| ネット環境 | 無 |
| 床仕様 | スケルトン |
| セキュリティ | 無 |
| 利用時間 | 24時間 |
| シャッター | 有/自動 |
| 照明設備 | 無 |
| 内装業者指定 | 無 |
| 駐車場 | |
|---|---|
| 状 況 | 無し |
| 取引情報 | |
|---|---|
| 取引態様 | 媒介 |
| 客付 | 可 |
この物件をチェックした人はこんな物件も見ています
- ことでん瓦町駅まで徒歩6分。 中央通り沿いのガラス張りの外壁が特徴の10階建て2F部分69.73坪のオフィス物件です。近隣駐車場の相場は25,000円~です。

香川県高松市亀井町8-11
230.52m2(69.73坪)
賃料未定
- ◆美術館通り沿い◆

香川県高松市番町1--3-1
105.79m2(32.00坪)
176,000円(税込)
- 市内を東西に結ぶ県道33号線沿いのオフィス物件です。室内の大きさは色々なタイプがあります。敷地内に駐車スペースをご用意しております(1台12,000円+税)ので、駐車場付オフィスをお考えのテナント様、是非ご覧下さいませ。

香川県高松市宮脇町1-1-23
64m2(19.36坪)
93,500円(税込)
- 【香川県高松市寿町の貸オフィス】 ◆中央通り沿い◆この建物は高松市の中心部を南北に走る「中央通り」沿いにあります♪ JR高松駅・琴電高松築港駅・片原町駅や、高等裁判所・地方裁判所・法務局・検察庁・日本銀行などの各官庁、主要企業の本 社・支社も徒歩圏内といった便利な場所です!

香川県高松市寿町2-4-20
193.52m2(58.54坪)
321,970円(税込)
- コトデン伏石駅前のマンション1F部分18.26坪の店舗物件です。事務所として使用する事も可能。店舗正面に2台分駐車可能です。

香川県高松市太田下町-2518-1
60.37m2(18.26坪)
121,000円(税込)
今日チェックした物件
お急ぎの方はお電話からお気軽にどうぞ!
087-814-4030 営業時間 / 9:30〜17:30 定休日 / 水曜、日曜、祝日


087-814-4030















087-814-4030