情報更新日:2025年08月01日/広告有効期限:なし
表示閲覧回数(過去30日間):16
お急ぎの方はお電話からお気軽にどうぞ!
087-814-4030 営業時間 / 9:30〜17:30 定休日 / 水曜、日曜、祝日
>物件詳細情報
| 基本情報 | |
|---|---|
| 物件番号 | 3845 | 
| 店舗形態 | 事務所 | 
| オススメ業種 | 事務所, 塾・学校・教育関係, 物販関係, 美容関係 | 
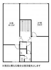
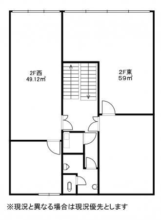
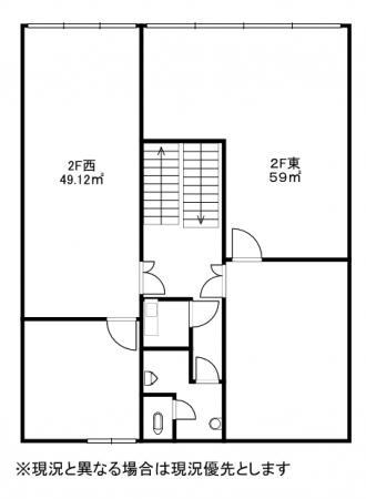
| 物件名 | アーバンスペース本町2F西【本町】テナント | 
| 物件の状態 | 空き | 
| 引越し時期 | 相談 | 
| 契約形態と期間 | 
        普通契約期間:2年間 | 
    
| 所在地・交通 | |
|---|---|
| 所在地 | 香川県高松市本町-10―7 | 
| 交 通1 | ことでん琴平線片原町駅 徒歩4 | 
| 交 通2 | - | 
| 賃料 | |
|---|---|
| 賃 料 | 60,500円(税込) | 
| その他月額費用 1 | 水道料 3,000円(税込) | 
| 精算方法 | 実費 | 
| その他 | |
|---|---|
| 備考 | ■水道料金:3000円(月額)■トイレ・給湯室は2階入居者にて維持管理をする■鍵交換費用別途■看板、サイン工事は借主負担■仲介手数料:賃料1ヶ月分 | 
| 建物 | |
|---|---|
| 建物構造 | 鉄骨造 | 
| 建物階建て | 
      地上4階 | 
| 施工年月 | 1981(昭和56)年 11月 | 
| 募集物件の階数 | 地上 2階 2F西号室 | 
| 契約面積 | 49.12m2(14.86坪) | 
| 用途地域 | |
| 設備 | |
|---|---|
| 水道 | 公営 | 
| 下水道 | 公共下水 | 
| ガス | 都市ガス | 
| エレベータ | 無 | 
| エアコン | 無 | 
| トイレ | 有/共用 | 
| キッチン | 有/共用 | 
| ネット環境 | 無 | 
| 床仕様 | CFシート | 
| セキュリティ | 無 | 
| 利用時間 | 24時間 | 
| シャッター | 無 | 
| 照明設備 | 有 | 
| 内装業者指定 | 無 | 
| 駐車場 | |
|---|---|
| 状 況 | 無し | 
| 取引情報 | |
|---|---|
| 取引態様 | 専任 | 
| 客付 | 可 | 
この物件をチェックした人はこんな物件も見ています
- ◆県道33号高松丸亀線沿い◆高松市内を東西に結ぶ33号線沿いのオフィスビルです!エレベーター・警備保障も付いています♪
 
香川県高松市中央町3-13
 
          46.32m2(14.01坪)
          81,481円(税込)        
- 中村第一ビル6F西号【塩上町】国道11号線沿いの鏡面仕上げの外観が特徴の7階建て4階部分34.3坪のオフィスビルです。駐車場は近隣相場税込16,500円です。ことでん今橋駅まで徒歩3分。
 
香川県高松市塩上町3-2-4
 
          58.96m2(17.84坪)
          99,000円(税込)        
- 【香川県高松市塩上町の貸オフィス】 ◆瓦町エリア・国道11号線南側◆琴電琴平線の瓦町駅まで徒歩4分です♪高松第一小中学校にも近いので、学習塾などもいかがでしょうか?
 
香川県高松市塩上町3-14-14
 
          36.67m2(11.09坪)
          55,000円(税込)        
- ◆美術館通り沿い◆
 
香川県高松市番町1--3-1
 
          105.79m2(32.00坪)
          176,000円(税込)        
- 中央通り沿いのR型の外観が特徴の8階建て5F部分 28.11坪のオフィス物件です。敷地内に立体駐車場が用意されています。ことでん瓦町駅まで徒歩10分。
 
香川県高松市中新町-11番地1
 
          92.93m2(28.11坪)
          賃料未定        
今日チェックした物件
お急ぎの方はお電話からお気軽にどうぞ!
087-814-4030 営業時間 / 9:30〜17:30 定休日 / 水曜、日曜、祝日


087-814-4030











       
       
       
 
      

          




087-814-4030